Progettazione di un oggetto di arredamento

La progettazione di un oggetto deve seguire quattro fasi principali, secondo il seguente schema:
  1. Ideazione
  2. Revisione
  3. Progetto definitivo
  4. Prototipo o modello




FASE 1 - ideazione

Prima lezione
A. Scelta dell’oggetto e del suo utilizzo;
B. Realizzazione di vari schizzi a mano libera "di brutta", per buttare giù differenti idee (proiezioni ortogonali o assonometria cavaliera su foglio a quadretti) Usa il quaderno a quadretti

A casa
C. Analisi degli oggetti già esistenti e delle loro caratteristiche: misure e materiali (aggiungere le principali misure sullo schizzo scelto) Prendi spunto da disegni già realizzati di alcuni oggetti di arredamento.


FASE 2 - revisione

Seconda lezione
Revisione col professore dello schizzo scelto (modifica del disegno e delle misure se necessario, scelta della scala di disegno adatta)


FASE 3 - progetto definitivo


Terza lezione
A. Compilazione della scheda di progetto con specifiche e schizzo definitivo (scarica scheda in pdf, scarica scheda in word)

Terza e quarta lezione
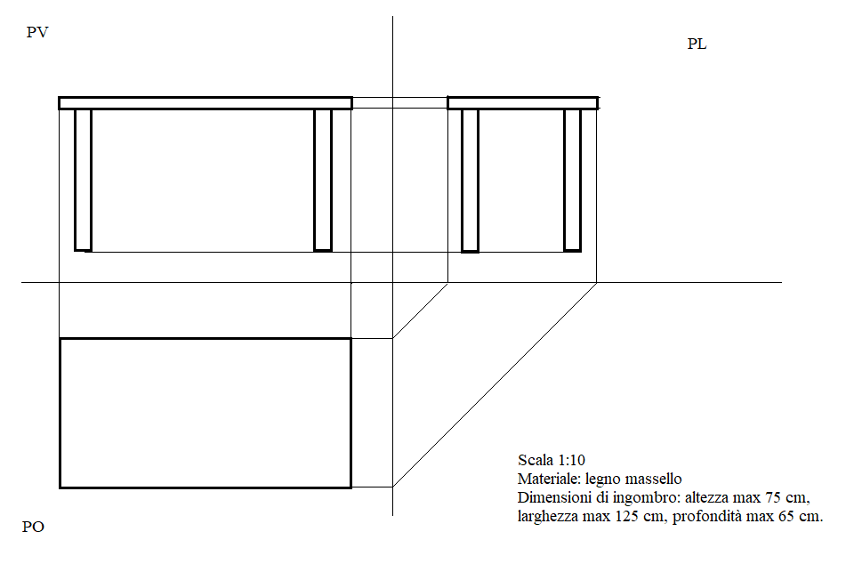
B. Realizzazione disegno in proiezioni ortogonali su foglio da disegno (in scala e con le quote d'ingombro)
C. Realizzazione disegno in assonometria (scegliere l'assonometria più adatta)
D. Realizzazione di disegno con sketch up (modello virtuale in 3D)


FASE 4 - realizzazione di modellino (prototipo)

A casa
A. Raccolta materiale di riciclo adatto alla realizzazione di un modellino dell'oggetto.

Quinta lezione
B. Creazione del modellino in scala 1:10 e decorazione (con collage, tempere, altro...)



Esempio di progetti: 






Esempio di un modello con materiale di riciclo: